What Does Owner Of Public Record Mean . “recording”, in relation to a protected. “public records” means papers, documents, records, registers, printed materials, books, maps, plans, drawings, photographs,. find the legal definition of owner of record from black's law dictionary, 2nd edition. “record” means a disc, tape, paper or other device in which sounds are embodied; a public record refers to information that has been recorded and/or filed by a public agency. The person who is the holder of. an owner of record is the individual who is listed in public records as the owner of an asset such as real estate,. a person or organization that is listed in public records as the owner of a property: a person who, according to the public records is the owner of a particular property is the record owner. Thompson, who still is owner of record,.
from www.nextrequest.com
a person or organization that is listed in public records as the owner of a property: “record” means a disc, tape, paper or other device in which sounds are embodied; The person who is the holder of. a public record refers to information that has been recorded and/or filed by a public agency. a person who, according to the public records is the owner of a particular property is the record owner. “public records” means papers, documents, records, registers, printed materials, books, maps, plans, drawings, photographs,. “recording”, in relation to a protected. find the legal definition of owner of record from black's law dictionary, 2nd edition. an owner of record is the individual who is listed in public records as the owner of an asset such as real estate,. Thompson, who still is owner of record,.
What is a Public Record? NextRequest
What Does Owner Of Public Record Mean Thompson, who still is owner of record,. a public record refers to information that has been recorded and/or filed by a public agency. find the legal definition of owner of record from black's law dictionary, 2nd edition. “record” means a disc, tape, paper or other device in which sounds are embodied; “public records” means papers, documents, records, registers, printed materials, books, maps, plans, drawings, photographs,. The person who is the holder of. a person who, according to the public records is the owner of a particular property is the record owner. an owner of record is the individual who is listed in public records as the owner of an asset such as real estate,. Thompson, who still is owner of record,. “recording”, in relation to a protected. a person or organization that is listed in public records as the owner of a property:
From www.youtube.com
Credit Reports What you need to do on any type of public record that What Does Owner Of Public Record Mean The person who is the holder of. a person or organization that is listed in public records as the owner of a property: “public records” means papers, documents, records, registers, printed materials, books, maps, plans, drawings, photographs,. find the legal definition of owner of record from black's law dictionary, 2nd edition. a person who, according to. What Does Owner Of Public Record Mean.
From www.youtube.com
How you can get public records from government This video should help What Does Owner Of Public Record Mean The person who is the holder of. a public record refers to information that has been recorded and/or filed by a public agency. an owner of record is the individual who is listed in public records as the owner of an asset such as real estate,. a person or organization that is listed in public records as. What Does Owner Of Public Record Mean.
From corporatefinanceinstitute.com
Accountability Overview, Key Roles, and Examples What Does Owner Of Public Record Mean The person who is the holder of. Thompson, who still is owner of record,. a public record refers to information that has been recorded and/or filed by a public agency. a person or organization that is listed in public records as the owner of a property: “public records” means papers, documents, records, registers, printed materials, books, maps,. What Does Owner Of Public Record Mean.
From health.hawaii.gov
Public Record Request HEER Office What Does Owner Of Public Record Mean a person or organization that is listed in public records as the owner of a property: “public records” means papers, documents, records, registers, printed materials, books, maps, plans, drawings, photographs,. a person who, according to the public records is the owner of a particular property is the record owner. “recording”, in relation to a protected. “record”. What Does Owner Of Public Record Mean.
From www.thebluediamondgallery.com
Public Records Free of Charge Creative Commons Law book image What Does Owner Of Public Record Mean a public record refers to information that has been recorded and/or filed by a public agency. Thompson, who still is owner of record,. a person who, according to the public records is the owner of a particular property is the record owner. a person or organization that is listed in public records as the owner of a. What Does Owner Of Public Record Mean.
From apostille1.com
School Records Online Apostille Services What Does Owner Of Public Record Mean “record” means a disc, tape, paper or other device in which sounds are embodied; Thompson, who still is owner of record,. a person or organization that is listed in public records as the owner of a property: The person who is the holder of. find the legal definition of owner of record from black's law dictionary, 2nd. What Does Owner Of Public Record Mean.
From www.pinterest.com
Get the most out of the Public Record Index! Genealogy resources What Does Owner Of Public Record Mean an owner of record is the individual who is listed in public records as the owner of an asset such as real estate,. “public records” means papers, documents, records, registers, printed materials, books, maps, plans, drawings, photographs,. a person or organization that is listed in public records as the owner of a property: “recording”, in relation to. What Does Owner Of Public Record Mean.
From freebackgroundcheck.org
How To Find Public Records Blog What Does Owner Of Public Record Mean The person who is the holder of. “record” means a disc, tape, paper or other device in which sounds are embodied; “public records” means papers, documents, records, registers, printed materials, books, maps, plans, drawings, photographs,. find the legal definition of owner of record from black's law dictionary, 2nd edition. a person who, according to the public. What Does Owner Of Public Record Mean.
From www.docformats.com
REG 101 Form (Statement to Record Ownership California DMV) What Does Owner Of Public Record Mean Thompson, who still is owner of record,. a public record refers to information that has been recorded and/or filed by a public agency. a person or organization that is listed in public records as the owner of a property: a person who, according to the public records is the owner of a particular property is the record. What Does Owner Of Public Record Mean.
From weownit.org.uk
A model for public ownership in the 21st century We Own It What Does Owner Of Public Record Mean The person who is the holder of. “record” means a disc, tape, paper or other device in which sounds are embodied; “recording”, in relation to a protected. “public records” means papers, documents, records, registers, printed materials, books, maps, plans, drawings, photographs,. a person or organization that is listed in public records as the owner of a property:. What Does Owner Of Public Record Mean.
From www.reddit.com
No record of return filed!?! What does this mean? I can see all What Does Owner Of Public Record Mean a person who, according to the public records is the owner of a particular property is the record owner. find the legal definition of owner of record from black's law dictionary, 2nd edition. “public records” means papers, documents, records, registers, printed materials, books, maps, plans, drawings, photographs,. The person who is the holder of. an owner. What Does Owner Of Public Record Mean.
From www.reviewjournal.com
How to request public records in Nevada Investigations What Does Owner Of Public Record Mean “public records” means papers, documents, records, registers, printed materials, books, maps, plans, drawings, photographs,. Thompson, who still is owner of record,. “record” means a disc, tape, paper or other device in which sounds are embodied; an owner of record is the individual who is listed in public records as the owner of an asset such as real. What Does Owner Of Public Record Mean.
From www.poynter.org
What does ‘off the record’ mean? The latest journalism controversy What Does Owner Of Public Record Mean a public record refers to information that has been recorded and/or filed by a public agency. “recording”, in relation to a protected. a person who, according to the public records is the owner of a particular property is the record owner. The person who is the holder of. a person or organization that is listed in public. What Does Owner Of Public Record Mean.
From www.tni.org
Democratic and collective ownership of public goods and services What Does Owner Of Public Record Mean a person who, according to the public records is the owner of a particular property is the record owner. “recording”, in relation to a protected. The person who is the holder of. Thompson, who still is owner of record,. a person or organization that is listed in public records as the owner of a property: “record” means. What Does Owner Of Public Record Mean.
From www.backgroundcheckme.org
Your Guide to Public Records (2022 Edition) What Does Owner Of Public Record Mean “recording”, in relation to a protected. The person who is the holder of. Thompson, who still is owner of record,. “record” means a disc, tape, paper or other device in which sounds are embodied; a public record refers to information that has been recorded and/or filed by a public agency. an owner of record is the individual. What Does Owner Of Public Record Mean.
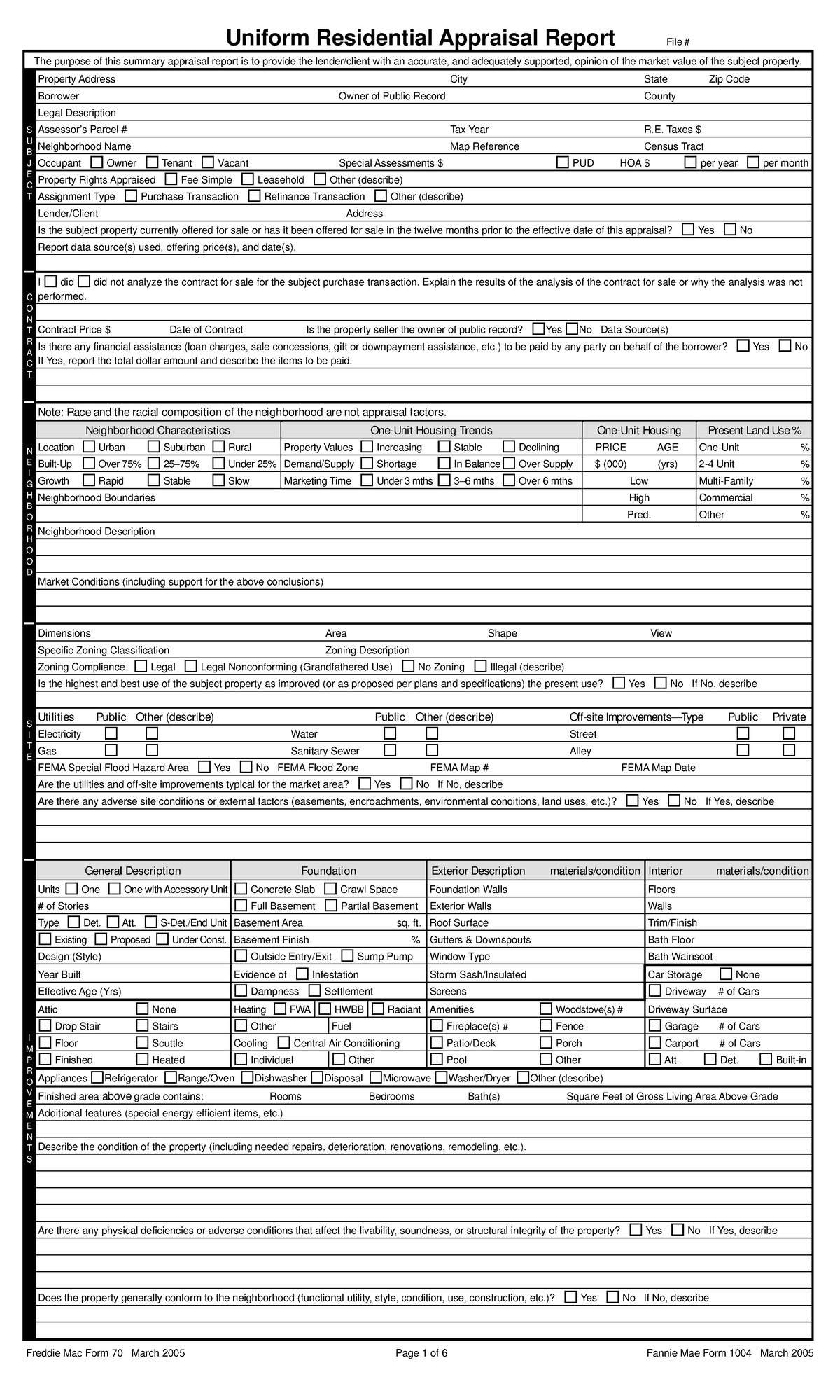
From www.studocu.com
Appraisal report Property Address City State Zip Code Borrower Owner What Does Owner Of Public Record Mean “record” means a disc, tape, paper or other device in which sounds are embodied; “public records” means papers, documents, records, registers, printed materials, books, maps, plans, drawings, photographs,. The person who is the holder of. a person who, according to the public records is the owner of a particular property is the record owner. find the. What Does Owner Of Public Record Mean.
From www.slideserve.com
PPT Introduction to Public Records PowerPoint Presentation, free What Does Owner Of Public Record Mean “record” means a disc, tape, paper or other device in which sounds are embodied; an owner of record is the individual who is listed in public records as the owner of an asset such as real estate,. “recording”, in relation to a protected. Thompson, who still is owner of record,. The person who is the holder of. Web. What Does Owner Of Public Record Mean.
From www.wvsd.org
Public Records Requests Family Resources West Valley School What Does Owner Of Public Record Mean find the legal definition of owner of record from black's law dictionary, 2nd edition. “recording”, in relation to a protected. “record” means a disc, tape, paper or other device in which sounds are embodied; The person who is the holder of. Thompson, who still is owner of record,. a public record refers to information that has been. What Does Owner Of Public Record Mean.